IVASTROY 2006 изпълнява груб строеж и цялостно строителство на къщи в Божурище, София, Банкя, Сливница и региона. Предлагаме и дървени сглобяеми къщи,външни сауни и оранжерии с доставка в България.

IVA COMFORT GARAGE серия – дървени гаражи и навеси

🌿 IVA COMFORT GARAGE е серия висококачествени дървени гаражи и помощни постройки,навеси, проектирани за дълготрайна употреба и максимален комфорт.

Серията е създадена за клиенти, които търсят здраво, естетично и функционално решение от естествено дърво – подходящо за автомобил, инструменти, складово пространство или работилница.

Конструкциите са изпълнени от масивни дървени панели с висока устойчивост, осигуряващи стабилност, дълъг експлоатационен живот и естествена защита от атмосферни влияния.

Всички модели са проектирани за бърз монтаж и надеждна експлоатация през всички сезони.

🌿IVA COMFORT GARAGE M101 – дървен гараж 15 м²

Дървени гаражи и навеси IVA COMFORT | Сглобяеми конструкции | IVASTROY 2006
Дървени гаражи и навеси IVA COMFORT | Сглобяеми конструкции | IVASTROY 2006
Дървени гаражи и навеси IVA COMFORT | Сглобяеми конструкции | IVASTROY 2006
Дървени гаражи и навеси IVA COMFORT | Сглобяеми конструкции | IVASTROY 2006
Дървени гаражи и навеси IVA COMFORT | Сглобяеми конструкции | IVASTROY 2006
Дървени гаражи и навеси IVA COMFORT | Сглобяеми конструкции | IVASTROY 2006

🌿IVA COMFORT GARAGE M101 – дървен гараж 15 м²

🌿IVA COMFORT GARAGE M101 е висококачествен дървен гараж, проектиран за надеждна защита на автомобила и практично използване на пространството около дома.

Съчетавайки естествена дървесина, здрава конструкция и функционален дизайн, този модел е идеално решение за двор, ваканционен имот или помощна постройка към жилищна къща.

Гаражът осигурява достатъчно пространство за автомобил, велосипеди, инструменти и градинска техника, като в същото време поддържа естетичен външен вид, вписващ се естествено в средата.

  Конструкция и материали

Конструкцията е изпълнена от масивни дървени панели с дебелина 17 мм, изработени от северен смърч и бор – дървесина с висока здравина и дълъг експлоатационен живот.

Покривът е изграден с OSB плоскости и битумно покритие, осигуряващи защита от дъжд, сняг и слънце.

Прозорците от плексиглас осигуряват естествена светлина в интериора, а широката гаражна врата позволява лесен достъп за автомобил.

  Основни размери и площ

✔ Площ: около 15 м²
✔ Ширина: ~3,03 м
✔ Дължина: ~4,93 м
✔ Височина: ~2,22 м

  Стандартният комплект включва:

✔ Дървени стенни панели 17 мм
✔ Здрава покривна конструкция с OSB плоскости
✔ Битумно покривно покритие + битумни керемиди
✔ Прозорци от плексиглас
✔ Гаражна врата с резе
✔ Всички крепежни елементи
✔ Инструкция за монтаж

(Подът не е включен – възможност за бетонна основа или допълнителна настилка)

  Доставка и монтаж

Гаражът се доставя във flat-pack комплект, което позволява:

✔ лесен транспорт
✔ бързо сглобяване
✔ възможност за самостоятелен монтаж или професионален екип.


Доставка в цяла България и ЕС.

 Цена 👉 от 3 888 € с ДДС (включена доставка до адрес)

(цената може да варира според конфигурация и транспорт)


Ако имате интерес към IVA COMFORT GARAGE M101 или желаете индивидуална оферта с доставка до конкретен адрес, моля попълнете формата за запитване по-долу.

🌿IVA COMFORT GARAGE M105 – компактен дървен гараж 6 м²

Дървени гаражи и навеси IVA COMFORT | Сглобяеми конструкции | IVASTROY 2006
Дървени гаражи и навеси IVA COMFORT | Сглобяеми конструкции | IVASTROY 2006
Дървени гаражи и навеси IVA COMFORT | Сглобяеми конструкции | IVASTROY 2006
Дървени гаражи и навеси IVA COMFORT | Сглобяеми конструкции | IVASTROY 2006
Дървени гаражи и навеси IVA COMFORT | Сглобяеми конструкции | IVASTROY 2006

🌿IVA COMFORT GARAGE M105 – компактен дървен гараж 6 м²

🌿IVA COMFORT GARAGE M105 е практичен и функционален компактен дървен гараж, създаден за защита на автомобил, мотоциклет, велосипеди, инструменти и градинска техника.

Моделът е идеално решение за по-малки дворове, ваканционни имоти и допълнителни стопански пространства, където се търси надеждна конструкция от естествено дърво с бърз монтаж и дълъг експлоатационен живот.

Съчетавайки естествена дървесина, здрава конструкция и удобен достъп, гаражът предлага отлична защита от атмосферни влияния и поддържа подредено и организирано пространство около дома.


Конструкция и материали

✔ Масивни дървени панели – 17 мм
✔ Северен смърч и бор – висока устойчивост и дълготрайност
✔ Покрив с OSB плоскости и битумно покритие и битумни керемиди
✔ Прозорци от плексиглас за естествена светлина
✔ Широка гаражна врата с резе за сигурност

  Размери и площ

✔ Площ: ~6 м²
✔ Ширина: 2,05 м
✔ Дължина: 2,97 м
✔ Височина: 2,22 м

  Стандартният комплект включва:

✔ Стенни дървени панели
✔ Покривна конструкция с покритие,битумни керемиди
✔ Прозорци
✔ Гаражна врата
✔ Всички крепежни елементи
✔ Подробна инструкция за монтаж

(Подът не е включен – възможност за бетонна основа или настилка по избор)

  Доставка и монтаж

Гаражът се доставя във flat-pack комплект – компактен транспорт и бързо сглобяване на място.
Подходящ за самостоятелен монтаж или монтаж от професионален екип.


  Цена 👉 от 2 850 € с ДДС

(включена доставка до адрес)

(цената може да варира според конфигурация и транспорт)


Ако имате интерес към IVA COMFORT GARAGE M105 или желаете оферта с доставка до конкретен адрес, моля попълнете формата за запитване по-долу.

🌿IVA COMFORT CARPORT R44 – премиум дървен навес за автомобил

Дървени гаражи и навеси IVA COMFORT | Сглобяеми конструкции | IVASTROY 2006
Дървени гаражи и навеси IVA COMFORT | Сглобяеми конструкции | IVASTROY 2006
Дървени гаражи и навеси IVA COMFORT | Сглобяеми конструкции | IVASTROY 2006
Дървени гаражи и навеси IVA COMFORT | Сглобяеми конструкции | IVASTROY 2006
Дървени гаражи и навеси IVA COMFORT | Сглобяеми конструкции | IVASTROY 2006
Дървени гаражи и навеси IVA COMFORT | Сглобяеми конструкции | IVASTROY 2006

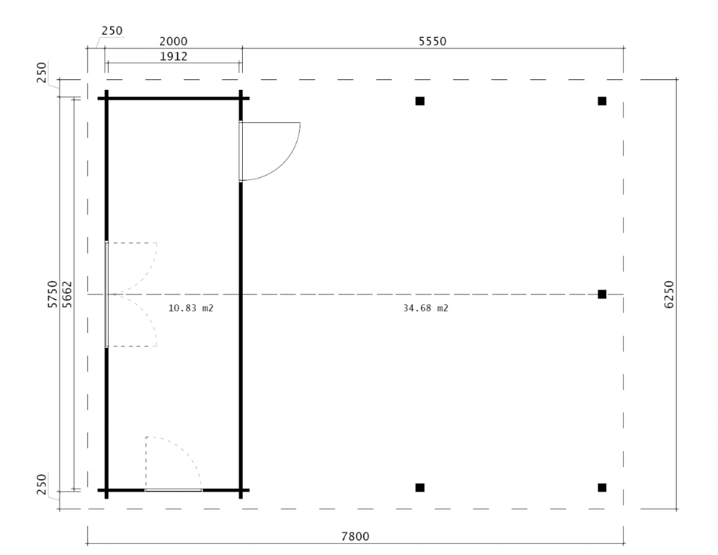
🌿IVA COMFORT CARPORT R44 – премиум дървен навес за автомобил

VA COMFORT CARPORT R44 е висококачествен масивен дървен навес за автомобил, проектиран за дълготрайна експлоатация, стабилност и елегантен външен вид.

Моделът съчетава здрава конструкция от масивни дървени панели с модерни остъклени елементи, осигурявайки надеждна защита на автомобила от дъжд, сняг, слънце и атмосферни влияния.

Подходящ както за еднофамилни къщи, ваканционни имоти, така и за бизнес обекти, хотели и комплекси.

  Конструкция и материали

✔ Масивни дървени стени с дебелина 44 мм
✔ Висок клас дървесина с отлична устойчивост
✔ Покривни дъски – 18 мм
✔ Големи прозорци и врата със закалено двойно остъкляване
✔ Висока носимоспособност на покривната конструкция
✔ Възможност за огледално разположение

  Размери и площ

✔ Размери: 5,75 × 2,00 м
✔ Площ: 10,83 м²
✔ Обща височина: 3,2 м
✔ Височина на стените: 2,4 м
✔ Просторен навес за автомобил + допълнително място за съхранение

  Стандартният комплект включва:

✔ Масивна дървена конструкция 44 мм
✔ Покривна система с дъски
✔ Прозорци с двойно закалено стъкло
✔ Остъклена входна врата
✔ Всички крепежни елементи
✔ Монтажна инструкция

(Покривното покритие се избира допълнително според предпочитанията)

  Доставка и монтаж

Доставя се във flat-pack комплект за лесен транспорт и бърз монтаж.


  Цена 👉от 6 800 € с ДДС

(с включена доставка до адрес в България)

(включена доставка до адрес)

(цената може да варира според конфигурация и транспорт)


🌿 Подходящ за:

• защита на автомобил и мотоциклет
• модерни жилищни имоти
• ваканционни къщи
• хотели и комплекси
• допълнително складово пространство


Ако имате интерес към IVA COMFORT CARPORT R44 или желаете оферта с доставка до конкретен адрес, моля попълнете формата за запитване по-долу.

Запитване

Изпрати