IVASTROY 2006 изпълнява груб строеж и цялостно строителство на къщи в Божурище, София, Банкя, Сливница и региона. Предлагаме и дървени сглобяеми къщи,външни сауни и оранжерии с доставка в България.

IVA HOUSE 70 – 39 m² с тераса и спално ниво

IVA HOUSE 70 – 39 m² с тераса и спално ниво

Сглобяема дървена къща тип flat-pack, доставяна като готов комплект за самостоятелен монтаж

IVA HOUSE 70 – 39 m² с тераса и спално ниво е просторна сглобяема дървена къща, проектирана за комфортно целогодишно обитаване като ваканционен дом, къща за двор, вила или глемпинг решение.

Моделът съчетава масивна конструкция със стени 70 mm, функционално вътрешно разпределение, панорамни прозорци с двойно остъкляване и покрита тераса за максимален комфорт и естествена светлина.

 Основни предимства

Масивна дървена конструкция – стени 70 mm
Просторна вътрешна площ с няколко помещения
Вътрешно спално ниво за допълнително пространство
Премиум прозорци с двойно остъкляване
Покрита тераса за външна зона за отдих
Готов комплект за бърз и лесен монтаж
Оптимизирана за транспорт в България и ЕС

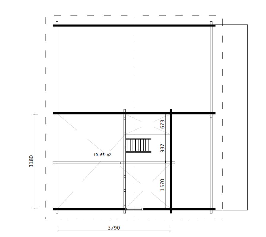
 Размери и площ

• Външни размери: 530 × 630 cm
• Жилищна площ: 26.72 m²
• Тераса: 12.3 m²
• Обща използваема площ: 39.02 m²
• Височина на сградата: 3 848 mm
• Покривна площ: 45.31 m²
• Брой помещения: 4

 Конструкция, покрив и под

• Покривни дъски – 18 mm
• Подови дъски – 28 mm
• Всички крепежни елементи включени

Покривно покритие не е включено в комплекта.

 Прозорци и врати – двойно остъкляване

Къщата разполага с големи панорамни прозорци и комбинация от остъклени и масивни врати за максимална светлина и комфорт.
Всички прозорци са със закалено двойно стъкло – подходящо за целогодишна употреба.

 Комплектът включва

всички дървени елементи на конструкцията
подова и покривна система
прозорци и врати с двойно стъкло
крепежни елементи
покрита тераса
стълба за вътрешното спално ниво

Фундамент, монтаж и покривно покритие не са включени.

 Подходяща за

• ваканционна къща
• двор и вила
• глемпинг комплекси
• къщи за гости
• офис или студио пространство

 Доставка

Къщата се доставя като сглобяем flat-pack комплект с номерирани елементи и подробна инструкция за самостоятелен монтаж в България и Европа.

Цена с доставка:  23 172 €

(без монтаж и допълнителни услуги)

Запитване

Ако имате интерес към IVA HOUSE 70 – 39 m² с тераса и спално ниво или желаете оферта с доставка до конкретен адрес, моля попълнете формата по-долу.

Изпрати