IVASTROY 2006 изпълнява груб строеж и цялостно строителство на къщи в Божурище, София, Банкя, Сливница и региона. Предлагаме и дървени сглобяеми къщи,външни сауни и оранжерии с доставка в България.

IVA HOUSE LUX 24

IVA HOUSE LUX 24 Премиум сглобяема дървена къща

IVA HOUSE LUX 24 Премиум сглобяема дървена къща за глемпинг къмпинг и частни имоти.                                                🌿 Универсално решение за бизнес и лично ползване.

IVA HOUSE LUX 24 е напълно изолирана компактна къща подходяща за:

✔ глемпинг комплекси и туристически бази
✔ морски и планински къмпинги
✔ ваканционни имоти
✔ частни дворове и къщи за гости
✔ отдаване под наем с висока възвръщаемост

Съчетава модерен дизайн естествено дърво и бърз монтаж без мокри процеси.

 Какво включва стандартният комплект:

✔ масивна дървена конструкция от квадратни профили 92 мм
✔ топлоизолиран под 100 мм
✔ изолиран покрив 150 мм с битумни керемиди
✔ подови дъски от естествено дърво 28 мм
✔ дървени прозорци и врати с двоен стъклопакет

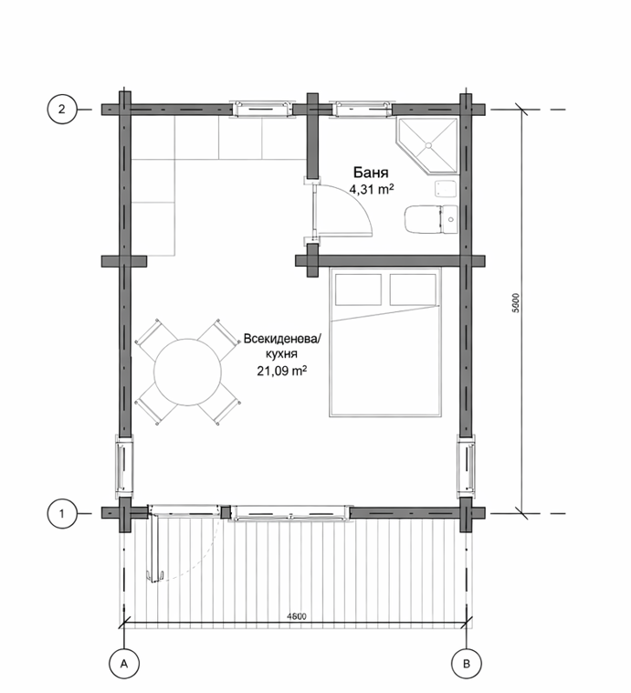
 Площ и разпределение

✔ всекидневна и трапезария 21,1 м²
✔ баня 4,3 м²
✔ обща площ 24,4 м²

 Доставка и монтаж

Къщата се доставя като flat-pack комплект в компактни пакети оптимизирани за транспорт.

✔ предварително подготвени дървени елементи
✔ номерирани части за лесен монтаж
✔ инструкции стъпка по стъпка
✔ минимални транспортни разходи
✔ възможност за собствен монтаж или професионален монтаж от екип

Монтажът е бърз без тежка техника и без мокри строителни дейности

 Цена с доставка с ДДС:  28 400 €

(без монтаж и допълнителни услуги)

✔ доставка включена
✔ фундамент не е включен възможни варианти бетонна плоча блокове или стълбове

  За глемпинг и къмпинг инвеститори

✔ целогодишно използване
✔ висок комфорт за гости
✔ ниски разходи за поддръжка
✔ бърза възвръщаемост
✔ подходяща за модулно разширяване на комплекси

  За частни клиенти

✔ готова за живеене
✔ уютна и енергийно ефективна
✔ модерна визия
✔ идеална за двор вила или гостна къща

Запитване

Ако имате интерес към IVA HOUSE LUX 24 или желаете оферта с доставка до конкретен адрес, моля попълнете формата по-долу.


Изпрати